Россия, Московская область, Орехово-Зуево, Малодубенское шоссе
Телефон:
+7 (916) 940-07- Показать номер
Пн-пт: 09:00—18:00; сб: 09:00—17:00; вс: 09:00—15:00
whatsapp telegram vk email

Планировка деревенского дома: проекты и варианты, внутренний интерьер

Деревенский дом – довольно просторное помещение для жилья, где удобно разместятся гости, которым точно не будет тесно, в отличие от стандартной малогабаритной квартиры.

Стремительное развитие современных коммуникаций и других благ цивилизованного общества стимулирует домовладельцев обустраивать собственное жилье так, чтобы находиться в нём было не менее приятно, чем в квартире.

Санузел и автоматическое отопление – неотъемлемые составляющие городских помещений, которые сразу вписываются в проектный план многоэтажного дома. Чтобы обустроить такие удобства в деревенском доме, нужно разумно подойти к перепланировке уже построенного дома или изначально грамотно составлять проектный план деревенской новостройки, учитывая нужные зоны комфорта.

Стиль

Не играет роли, какой стиль предпочтут хозяева, главное – создание комфорта и максимум удобства в помещениях. Конечно, хочется немного оригинальности, чтобы выразить свою индивидуальность. В этом помогут дизайнерские приемы и хитрости. Благодаря различным дополнительным элементам, частные владения можно превратить в райский уголок для семьи.

image

Как сделать проект – подготовительные этапы создания чертежа

Первым делом учитывается предназначение будущей постройки: станет она местом для загородного отдыха или же постоянным жильем. До того как начать составление проекта следует учесть количество и потребности всех людей, для проживания которых предназначается здание. Личные предпочтения оговариваются предварительно. Рекомендуется выбирать тихое место вдали от проезжей части. Постройку жилья разделяют на этапы, с соответствующей фиксацией в разделах проекта.

Сначала создается эскизная часть. Потом архитектурный и конструктивный разделы. Следом за ними готовятся инженерно-технические ведомости и далее наступает очередь создания чертежей для отделочного/дизайнерского раздела насчет соответствующего этапа работ. Перед созданием основного эскиза следует делать наброски. Потом же на базе главного чертежа дома рисуются более подробные. Они и станут основой для отображения еще более детальной планировки.

image

Профессиональная оценка

Всем известно, что строительство не реально начать без оценки специалистов. Инженерно-техническая проверка и составленное в результате профессиональное заключение внесет в проект дома свои корректировки. Это будут добавленные схемы канализации, водоснабжения, вентиляции, отопления и электропроводки.

Монтаж охранных систем вносится в проект отдельно.

image

Что учитывать при составлении схемы дома

Чтобы составить план, необходимо определиться с этажностью здания, вариантом крыши, экстерьером, включая количество оконных проемов, балконов и лоджий. Следует предусмотреть возможность обустройства террасы и мансарды. Все эти элементы нужно отображать в продольном и поперечном разрезах, вместе с конструктивными качествами и нужными материалами. Учитываются особенности участка под дом, в том числе расположение, ориентацию по сторонам света, рельеф, особенности почвы. От них зависит оптимальная внутренняя планировка, в первую очередь расположение помещений. Количество и конфигурация комнат подбирается с учетом количества жильцов и возраста каждого из них.

Главным приоритетом при составлении схемы является функциональная полезность. Следует также предусмотреть помещения для размещения строителей и других работников. На плане желательно оставить место про запас: когда-то оно может «заполниться» дополнительным гаражом или гостевым домиком.

image

Некоторые функциональные элементы, которые лучше предусмотреть заранее:

  • мастерская;
  • кабинет;
  • оранжерея;
  • зимний сад;
  • сауна;
  • бассейн;
  • тренажерный зал.

image

Большие помещения нуждаются в дополнительном отоплении!

Кантри

Подойдет для одноэтажных строений. Для него характерна кованая мебель, либо мебель из дерева, а также большое количество кресел. Декором служат тканевые дорожки, расписная керамика, композиции из цветов, вышитые покрывала и подушки.

На стены можно повесить панно, либо картины с лесными мотивами или натюрморты, а на столе разместить глиняную вазу. В отделке стеновых поверхностей допустимы теплые, светлые тона и специальные каменные или деревянные вставки.

Особенности составления проекта дома — чертежи как основа планирования

Чертежи помогают примерно представить итоговый вид здания: снаружи и внутри. Нет смысла торопиться с созданием окончательного варианта эскиза. Лучше потратить много времени и предвидеть больше нюансов. Чертежи можно раз за разом подстраивать под новые идеи, учитывая дальнейшую жизнедеятельность на участке и внутри здания. Предусмотреть можно даже достройку этажей.

В схемах первым делом указывают их количество, а также тип верхнего яруса. Крыша бывает плоской и покатой, а под ней может располагаться мансарда. Внутри планируются зоны: рабочая, для готовки, для отдыха и т. д. Снаружи — хозяйственные помещения, пристройки, сады, общие зоны. Территории с похожей функциональной нагрузкой размещаются близко друг к другу. Все вышеуказанные аспекты лежат в основе проектировки готовых планов. Каждый готовый проект — некий вариант с полным набором необходимых приспособлений и функций.

Что входит в структуру проекта дома

До начала самостоятельного составления проекта необходимо понять его роль, в первую очередь предназначение каждого раздела. Подробный план является, главным образом, руководством по проведению разных видов работ, согласно существующим нормам и личным предпочтениям. Документ наделен контролирующей функцией: за расходом материалов, затратами и качеством работ. В план здания вносится размер помещений и проемов, расположение лестниц, конфигурация кровли, фундамента, подвала, этажей и мансарды.

Разделы проекта условно делятся на две подчасти: архитектурно-строительную и инженерно-конструкторскую. В первую из них входят чертежи фасадов и подробные архитектурные схемы. Там обязательно указываются параметры длины, расстояния, интервалы, параметры сечения, площадь и объемы помещений и узлов. Что касается второй части, то в нее собирают чертежи вентиляционной, отопительной, канализационной и водопроводной систем, а также схему электросети.

В проект входит и сметная документация, без которой не удастся оформить дом как недвижимость!

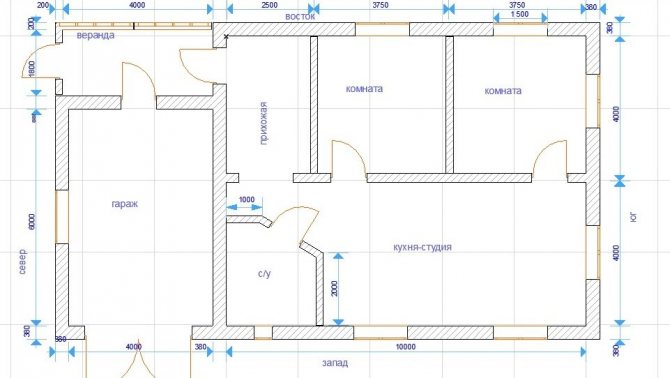
Перечень обязательных архитектурных чертежей дома с размерами

В их число входят архитектурно-строительные эскизы:

  • план первого этажа;
  • второго этажа;
  • подвала и мансарды (если имеются);
  • стропильной конструкции;
  • поперечных и продольных разрезов.

Архитектурные эскизы предусматривают нанесение точных параметров, общих характеристик жилого здания, вспомогательных построек, частей сооружений и отдельных конструкций. Планы составляются для каждого этажа, с четким обозначением функциональной роли, будь то жилое, техническое, хозяйственное или складское помещение. На бумагах указываются площадь и все линейные размеры.

Местонахождение окон и дверей с соответствующими размерами, интервалами и расстояниями наносятся сюда же. Понадобится и план каркасной конструкции крыши. При этом отображают все стропилины и другие элементы системы. К чертежу следует приложить таблицу со спецификацией деталей этой конструкции. План кровли формируется отдельно, с указанием габаритов и углов. Отображается также местоположение люков, дымоходов, вентиляции и люкарн. Дополнительно составляются схемы разрезов пространственных зон — от основания до крыши. Требуется по меньшей мере 5 таких чертежей, выполненных с разных сторон.

Чертежи дома в сечении и изображение фасадов с разных сторон

Чертежи сечения бывают поперечного, продольного и вертикального направления. Они предназначаются для определения высоты комнат на разных этажах, величины заглубления цоколя или подвала, углов наклона различных частей крыши. Создание проекта невозможно без эскизов всех фасадов. Для дома обычной конфигурации это чертежи 4 разных сторон: парадной, задней и торцевых. Таким образом, к документации добавляются следующие листы: Лицевой фасад, Задняя сторона здания, Боковой фасад № 1, № 2. Дополнит эти сведения таблица со спецификацией разных элементов, в т. ч. окон и дверей.

Схемы сторон дома являются своеобразным соответствием упрощенного плана дома и первоначальных набросков. Именно поэтому составление простых планов через компьютерные программы не вызовет затруднений даже у тех, кто не пользовался ими раньше. Проектирование, однако, требует привлечения специалистов в разных направлениях в строительстве. Принципиально важное значение имеет внешний вид фронтального фасада. Его следует дополнительно обсудить.

В схемах уточняются параметры, форма, способ открытия и количество составных элементов столярных изделий.

Конструктивный раздел: как нарисовать чертежи и схемы отдельных элементов

Конструктивный раздел включает в себя подробные описания на схемах с измерением в миллиметрах. Он пополняется как общими планами, так и отдельными рисунками разных элементов. В их число входят лестничные клетки, фундамент, перекрытия, элементы стропильной системы. Для проекта следует указать особенности материалов и изделий по каждому узлу. В чертеже фундамента отображаются параметры укрепительных конструкций, расположение в почве и материалы для проведения работ. План фундамента представляется общим рисунком и чертежами продольного и поперечного сечений.

Некоторые типы чертежей предусматривают разрезы плит перекрытия в 2 плоскостях на разных отметках: +0,00, +3,00 и +6,00. Сложные узлы прилегания конструктивных деталей указываются отдельно. По всем узлам приводятся расчеты относительно статичности и прочности. В раздел добавляют таблицы с описанием особенностей и алгоритмов использования перекладин, арматурных прутов и железобетонных деталей.

Инженерно-технический раздел: чертежи комнат и коммуникаций

В данный раздел входят схемы электрооборудования, канализации, водоснабжения, отопительных систем, а также объяснения расчетов. Спецификация отдельного оборудования отображается в виде таблиц-расшифровок. Инженерно-техническая часть должна содержать ведомости о частях здания и об отдельных и автономных системах внутри построек. Чертежи водопровода включают в себя схему расположения коммуникаций на всех ярусах и в подвале. Канализационная система отображается по аналогичному принципу. Часто два этих подраздела объединяют.

В инженерную часть добавляется аксонометрическая схема установки систем водообеспечения (по горячей и холодной воде). Электрический проект должен содержать показатель расчетной мощности здания, чертеж разводок осветительной и силовой сетей. Монтажный раздел заполняется общей и поэтажными схемами. К технической части проекта также относится информация о расположении электрической и газовой установок и схема устройства громоотвода.

Система охранной сигнализации в чертежах плана дома

Перед самостоятельным проектированием дома нужно предусмотреть использование охранной сигнализации. В данном случае требуется разработка отдельного проекта. В основе системы сигнализации лежит структурная сеть приспособлений для организации разных уровней защиты объектов. Эффективность работы должна быть одинаковой по всей территории.

Проект создается в соответствии с ГОСТом и СНиПом и остальной регламентирующей документацией. При этом берутся во внимание такие факторы, как функция помещения, площадь объекта, его конструктивные особенности, вариант сигнализации (бывает беспроводной и проводной). На плане строения нужно обозначить схему охранной сигнализации. На нее наносят датчики разбития стекла, движения, открытия, а также сирену, считыватель и зону обнаружения движения. Проект сигнализации проверяется и утверждается уполномоченными организациями. Затем создаются подробные схемы.

Архитектурный план

После утверждения и согласования всех деталей, можно переходить к оформлению. Составляется архитектурный план, где указывается расположение основных деталей: окон, дверей. В нем прописывается форма крыши и ее наклон, а также вид используемого фундамента.

По окончании кропотливой работы получится объемная чертежная схема со всеми конструкциями, балками, перемычками, стропильными системами и лестницами.

Сопутствующая документация к проекту и строительным чертежам

В проекте содержатся ведомости об этапах строительства и проведении отдельных видов работ. Генеральный план и подробные чертежи пополняют объясняющими таблицами и различными приложениями. Кроме отдельных планов, учитывающих личные предпочтения и особые потребности, понадобятся обязательные документы с ключевыми данными. В их числе — документация со списком отделочных и стройматериалов, информацией об их типе, документы с описанием инженерных решений, сведения о финансах и технических аспектах.

Понадобятся данные о высоте, площади, массе и объеме в кубометрах (кубатуре). Обязательно составляется описание функциональности здания. Это касается и документации с архитектурно-конструкционной оценкой. На основании проекта принято организовывать процесс, включающий определенную последовательность строительных работ и сопутствующие финансовые расходы.

В архитектурном паспорте содержатся:

  1. Копия лицензии проектировщика;
  2. План и схематические изображения кровли в разрезе;
  3. Поэтажные планы;
  4. Расцветка наружных стен;
  5. Пояснительная записка.
Данные инструменты предназначены для моделирования трехмерной архитектуры, в т. ч. одноэтажных и двухэтажных домов, дач, коттеджей. В качестве дополнительной функции программы позволяют производить виртуальную расстановку предметов мебели. Специальные плагины и расширения данных приложений осуществляют визуализацию объектов. Благодаря данной опции можно смотреть, как строения выглядят сверху, в разрезе, под углом. Кроме того, моделирующие приложения позволяют работать со слоями.Модели можно в любой момент отредактировать, а также покрутить вокруг своей оси или увеличить для просмотра наименьших деталей. Для хранения разных проектов предусмотрены библиотеки, в которых можно быстро и легко просматривать объекты. Современные программы позволяют создавать также динамические элементы. В интернете доступны платные и бесплатные приложения и онлайн-ресурсы для проверки особенностей конструкций при максимально реалистичных параметрах.

Декор

Пасторальному стилю свойственно большое количество декоративных элементов:

  • текстильные изделия под ногами и на стенах;
  • подушки;
  • иконы;
  • самостоятельно сшитые скатерти и кружевные салфетки;
  • любая вышивка;
  • и другие подобные украшения только приветствуются.

Они создают неповторимый уют и тёплую домашнюю атмосферу.

Стены можно украсить картинами, на которых изображена природа или звери, окна задекорировать небольшими растениями, а пустующие участки различных поверхностей обставить красивыми тематическими статуэтками или оберегами.

Но первоначальным этапом в создании умиротворительной атмосферы считают выбор цветового оттенка, который будет преобладать в стилистике дома. Особых ограничений не установлено, но для скромного, сдержанного и слегка грубоватого стиля кантри свойственны природные оттенки и приглушенные, неяркие тона с гармоничными вливаниями светлых оттенков. Также популярны пастельные оттенки.

Вам будет интересно: Как правильно построить дом с цокольным этажом: типы проектов, планировка и этапы возведения

Ссылка на основную публикацию
Похожее